会員ログイン
ログインID
パスワード
ドット不動産施工事例リビングと寝室が一体型のレトロなマンション

中古リノベーション事例

リビングと寝室が一体型のレトロなマンション

マンション

リノベーション概要

月々支払い
28,793円 ※全額借入、35年返済、変動金利、金利1%の場合
リノベーションプラン・内容
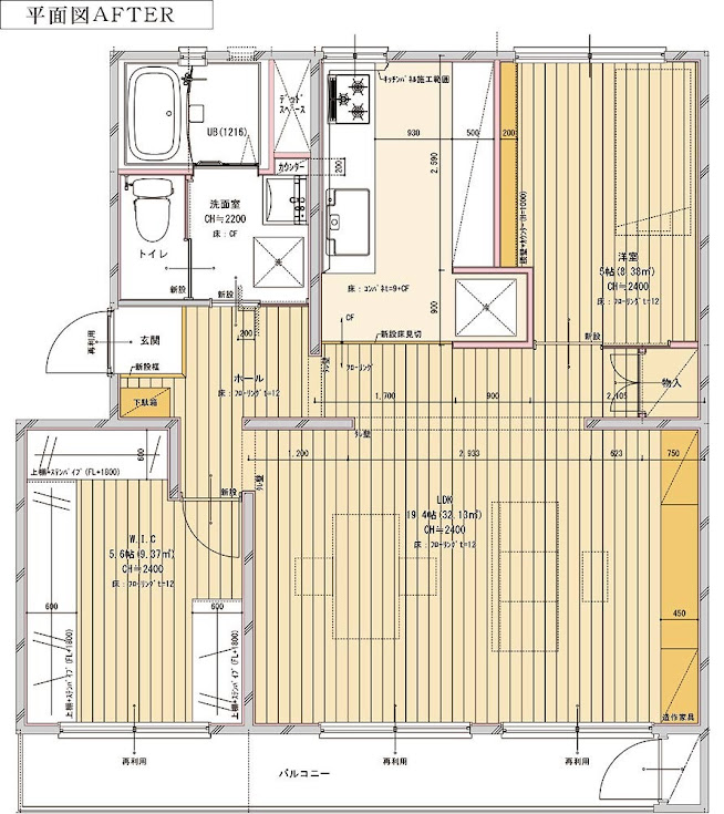
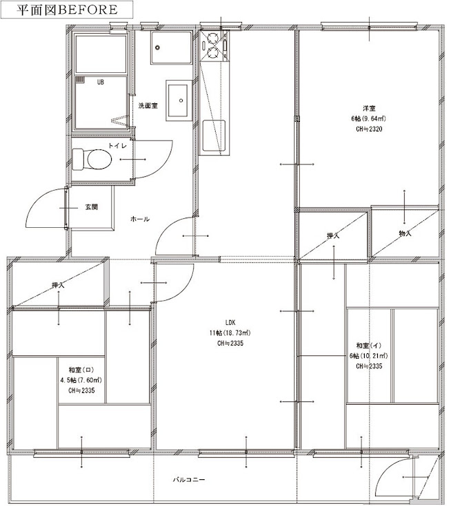
ずっと家族と一緒に住まわれていたレトロなマンション。
思い出の詰まるお部屋をより住みやすく動線を変え刷新!
壁やドアを少なくして空間の広がりを作り全体的に明るいお部屋に。
またリビングと寝室を隣接させ動線も短く空間の広がりを持たせた間取りになりました。
築年数
昭和56年10月
物件費用
0円
リノベーション費用
1,020万円

BEFORE/AFTER

玄関
→
キッチン
→
リビング
→
洗面所
→
間取り図
→

ページの先頭へ