中古リノベーション事例
seamiess life
戸建て
リノベーション概要
- 月々支払い
- 82,963円 ※全額借入、35年返済、変動金利、金利1%の場合
- リノベーションプラン・内容
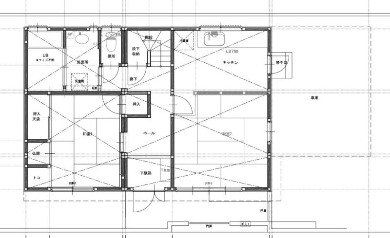
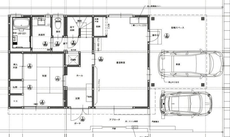
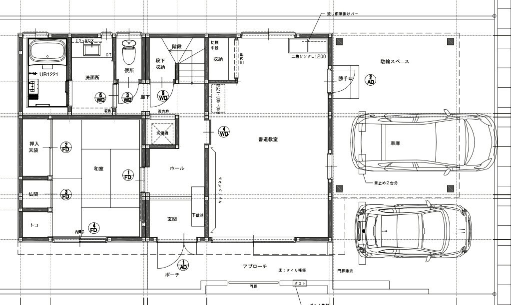
- 暮らしと仕事」をひとつにしたリノベーションプラン。
元々は2世帯向けの2階建て住宅を、
2SLDK+教室の間取りにリノベーションし、仕事と生活が調和した空間を作り上げました。
2階には明るく開放的なLDKを配置し、自然光がたっぷり入る快適なリビングスペースを確保。
シンプルで洗練されたナチュラルな内装と広々とした間取りで、心地よいリラックス空間が広がります。
1階には子どもたちが楽しめる教室スペースを設置し、明るく親しみやすいデザインに。
仕事場(書道教室)としての機能性と、生活空間の快適さが見事に調和した、理想的な住まいに仕上がりました。 - 築年数
- 35年
- 物件費用
- 1729万円
- リノベーション費用
- 1210万円




























